1.滑块+滑块的结构,通过斜导柱孔位进行二次抽芯,这种结构是对于侧面抽芯时还存在0.5~2mm的倒扣时可以套用此结构,使用过程中安全可靠。

2.采用滑块侧向抽芯的力,通用T型槽带动,进行产品内部斜度运动,达到抽芯的效果,此抽芯结构比较巧妙,能适用于产品内部的斜度倒扣,但设计完成后需要进行反复运动仿真。

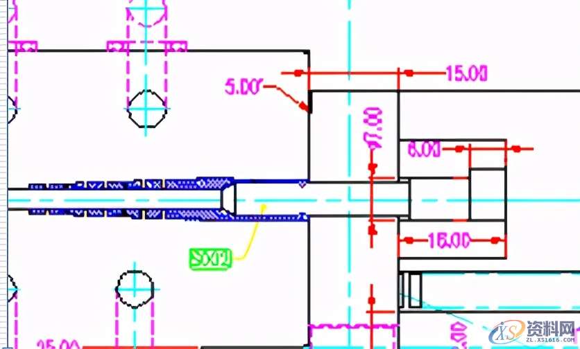
3.此结构又是滑块上加滑块的结构,先通用斜导柱进行侧向运动,向侧向内部倒扣进行抽芯脱离,再通过油压缸进行二次抽芯,达到完全的脱模状态。

4.滑块带动滑块的经典结构。通用将滑块上设计一个弯销结构,使第一滑块运动时,由于滑块上自身的弯销带动第二个滑块运动,达到二次抽芯的效果。

5.滑块用有滑块的结构,运动原理先采用T槽带动T槽进行抽芯,再进行整体抽芯的原理。

6.滑块延时抽芯,采用斜导柱避空位加大,再加有铲基追加一段直身位来达到滑块延时抽芯的效果。

7.滑块中进行强制脱模的结构。


8.前模滑块的抽芯样式:1

9.前模抽芯滑块样式:2

10.油压缸斜抽芯机构原理:

11.母模侧斜抽芯原理:

12.后模斜抽芯机构原理:

13.母模斜抽芯机构

14.母模隧道滑块结构原理:

15.母模双T槽抽芯结构原理:

16.滑块液压缸抽芯延时结构:

17.斜导柱带运T型槽二次抽芯结构:

18.滑块上追加顶针延时抽芯机构,主要是对于大型胶位面,或者侧面抽芯存在包紧力的区域。

19.T槽+弯销抽芯结构工作原理:

20.模仁里滑块抽芯机构:

21.一个滑块进行多个方向抽芯机构原理:

22.液压缸带动杠杆进行弧形抽芯机构原理:1

23.液压缸带动杠杆进行弧形抽芯机构原理:2

24.母模仁抽芯机构原理:

25.母模侧斜顶机构原理:

我们是知识搬运工,我们是技术传播者!
东莞潇洒职业培训学校开设课程有:CNC数控编程、塑胶模具设计,压铸模具设计、冲压模具设计, Solidworks/pro/E产品设计、AutoformR7工艺分析,非标自动化设计、PLC编程、文职、电商、平面设计、新媒体等培训课程,潇洒职业培训学校线下、线上、随到随学等学习方式,上班学习两不误,欢迎预约免费试学!
联系电话:18029183455(微信同号)QQ:2799669782
线上免费试学: xsmj.ke.qq.com
免责声明:
1;所有标注为智造资料网zl.fbzzw.cn的内容均为本站所有,版权均属本站所有,若您需要引用、转载,必须注明来源及原文链接即可,如涉及大面积转载,请来信告知,获取《授权协议》。
2;本网站图片,文字之类版权申明,因为网站可以由注册用户自行上传图片或文字,本网站无法鉴别所上传图片或文字的知识版权,如果侵犯,请及时通知我们,本网站将在第一时间及时删除,相关侵权责任均由相应上传用户自行承担。
[complaint:内容投诉]
智造资料网打造智能制造3D图纸下载,在线视频,软件下载,在线问答综合平台 » 25类滑块经典结构:滑块+滑块、滑块+斜顶、滑块+顶针
1;所有标注为智造资料网zl.fbzzw.cn的内容均为本站所有,版权均属本站所有,若您需要引用、转载,必须注明来源及原文链接即可,如涉及大面积转载,请来信告知,获取《授权协议》。
2;本网站图片,文字之类版权申明,因为网站可以由注册用户自行上传图片或文字,本网站无法鉴别所上传图片或文字的知识版权,如果侵犯,请及时通知我们,本网站将在第一时间及时删除,相关侵权责任均由相应上传用户自行承担。
[complaint:内容投诉]
智造资料网打造智能制造3D图纸下载,在线视频,软件下载,在线问答综合平台 » 25类滑块经典结构:滑块+滑块、滑块+斜顶、滑块+顶针

